FŐ TULAJDONSÁGOK
Alkalmazási terület
Semleges gázok és folyékony közeg szűrésére
Mérettartomány
DN 150–800
Test és fedél anyaga
Szűrő anyaga
Rozsdamentes acél 1.4301
Tömítés
Megengedett üzemi nyomás
PN 6/10/16/25
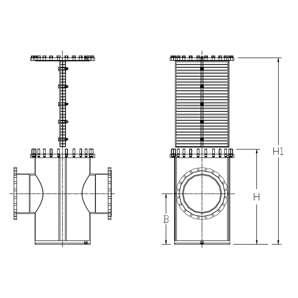
Jellemzők
| DN | Méretek (mm) | Normál szűrő Kv (m³/h) | Normál szűrő ζ (-) | Súly (kg) | |||
| L | H | H1 | B | ||||
| 150 | 480 | 630 | 1230 | 400 | 489 | 4,00 | 81 |
| 200 | 600 | 795 | 1550 | 560 | 868 | 3,92 | 123 |
| 250 | 730 | 950 | 1855 | 670 | 1358 | 3,98 | 203 |
| 300 | 850 | 1045 | 2005 | 610 | 1890 | 4,12 | 300 |
| 350 | 980 | 1090 | 2135 | 580 | 2225 | 4,39 | 445 |
| 400 | 1100 | 1090 | 2135 | 580 | 3000 | 4,20 | 460 |
| 450 | 1200 | 1215 | 2392 | 650 | 3808 | 4,25 | 660 |
| 500 | 1250 | 1215 | 2392 | 650 | 4821 | 4,09 | 700 |
| 600 | 1450 | 1340 | 2649 | 720 | 6939 | 4,19 | 1169 |
| 700 | 1650 | 1420 | 2810 | 750 | 9519 | 4,12 | 1337 |
| 800 | 1850 | 1600 | 3280 | 840 | 12511 | 4,19 | 2083 |
| SZŰRŐBETÉT | |||||||
| Normál szűrő | |||||||
| DN | 150–800 | ||||||
| Szitaköz (mm) | 2,00 | ||||||
| Szitasűrűség (db/cm²) | 15,5 | ||||||