FŐ TULAJDONSÁGOK
Közeg
Ivóvíz
Névleges méret
DN 50–450
Névleges nyomás
PN16 / PN25
Megengedett belépő nyomás
0,5–16 bar / 0,5–25 bar
Kilépő nyomás
3–15 bar / 3–19 bar (gyárilag 4 bar értékre állítva)
Maximális üzemi közeghőmérséklet
80 °C
Minimális nyomásesés
0,1 bar
Jellemzők
Anyagok
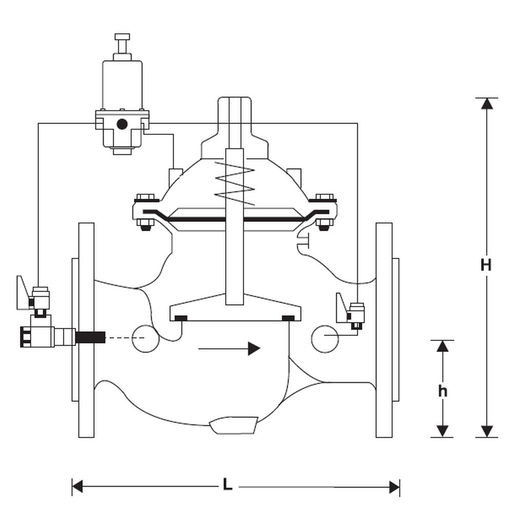
| Névleges átmérő DN | 50 | 65 | 80 | 100 | 150 | 200 | 250 | 300 | 350 | 400 | 450 |
| Súly (kg) | 14 | 15 | 24 | 39 | 82 | 159 | 247 | 407 | 512 | 824 | 947 |
| Súly, vezérlőszelep nélkül (kg) | 12 | 13 | 22 | 37 | 80 | 157 | 245 | 405 | 510 | 822 | 945 |
| Méretek (mm) L | 230 | 292 | 310 | 350 | 480 | 600 | 730 | 850 | 980 | 1100 | 1200 |
| H | 270 | 280 | 330 | 350 | 480 | 570 | 730 | 870 | 910 | 1150 | 1170 |
| h | 83 | 93 | 100 | 110 | 143 | 173 | 205 | 230 | 260 | 290 | 310 |
| Térfogatáram (Qmax) m³/h V=5,5 m/s | 40 | 40 | 100 | 160 | 350 | 620 | 970 | 1400 | 1900 | 2500 | 3100 |
| kvs-érték | 43 | 43 | 103 | 167 | 407 | 676 | 1160 | 1600 | 2000 | 3000 | 3150 |