FŐ TULAJDONSÁGOK
Felhasználási terület
Semleges gázok és folyékony közeg szűrésére
Mérettartomány
DN 15–200
Test anyaga
Acélöntvény GP240GH (1.0619)
Szűrő anyaga
Rozsdamentes acél 1.4301
Tömítés
Azbesztmentes tömítés
Fedél
Se55J2G3 (St 52-3 – 1.0570)
Megengedett üzemi nyomás
PN 16/25/40
Jellemzők
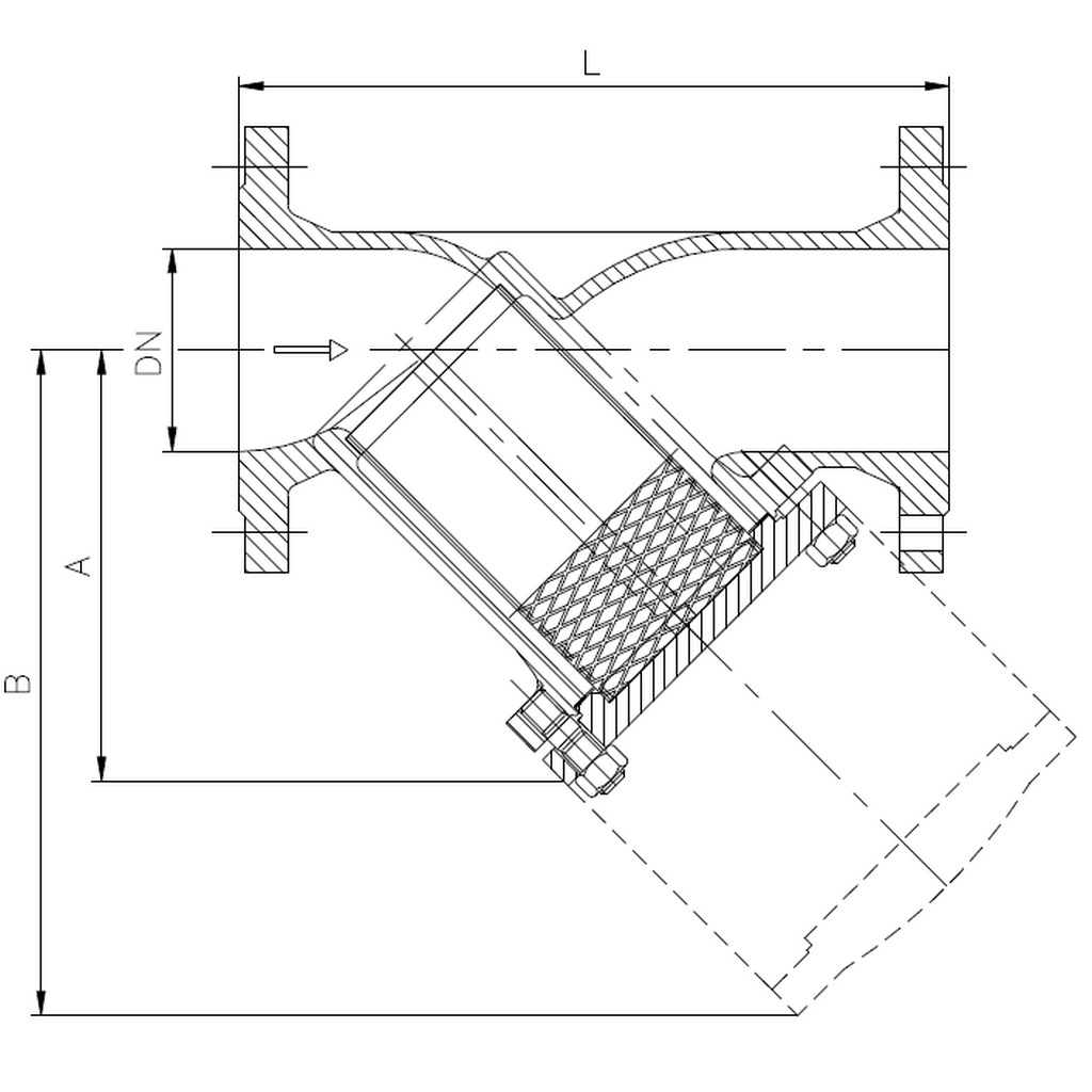
| DN | Méretek (mm) | Normál szűrő Kv (m³/h) | Finom szűrő Kv (m³/h) | Normál szűrő ζ (-) | Finom szűrő ζ (-) | Súly (kg) | ||
| L | A | B | ||||||
| 15 | 130 | 80 | 135 | 4.00 | 4,1 | 4,34 | 4,72 | 3,02 |
| 20 | 150 | 80 | 130 | 7.00 | 7,2 | 4,60 | 4,99 | 3,75 |
| 25 | 160 | 100 | 165 | 11.00 | 10,8 | 4,78 | 5,33 | 5,58 |
| 32 | 180 | 110 | 170 | 17.00 | 17,3 | 5,19 | 5,64 | 6,93 |
| 40 | 200 | 125 | 190 | 27.00 | 26,6 | 5,41 | 5,79 | 8,30 |
| 50 | 230 | 145 | 220 | 41.00 | 41,2 | 5,79 | 5,89 | 11,40 |
| 65 | 290 | 160 | 240 | 67.00 | 66,3 | 6,19 | 6,49 | 15,46 |
| 80 | 310 | 175 | 275 | 100.00 | 97,4 | 6,49 | 6,91 | 22,40 |
| 100 | 350 | 230 | 350 | 154.00 | 148,7 | 6,70 | 7,23 | 34,74 |
| 125 | 400 | 270 | 410 | 239.00 | 232,4 | 6,80 | 7,23 | 50,25 |
| 150 | 480 | 320 | 490 | 345.00 | 334,6 | 6,80 | 7,23 | 79,50 |
| 200 | 600 | 380 | 585 | 623.00 | 604,0 | 6,59 | 7,02 | 157,00 |
| SZŰRŐBETÉT | ||||||||
| Normál szűrő | Finom szűrő | |||||||
| DN | 15–20 | 25–65 | 80–200 | 15–200 | ||||
| Szitaköz (mm) | 0,54 | 0,87 | 1,18 | 0,25 | ||||
| Szitasűrűség (db/cm²) | 150 | 64 | 25 | 625 | ||||
| Üzemi közeg-hőmérséklet | PN 25 | PN 40 | ||||||
| Megengedett üzemi nyomás (bar) | ||||||||
| -10 °C – +50 °C | 25 | 40 | ||||||
| 200 °C | 19,4 | 30,2 | ||||||
| 300 °C | 16,1 | 25,8 | ||||||
| 400 °C | 14,4 | 23,1 | ||||||